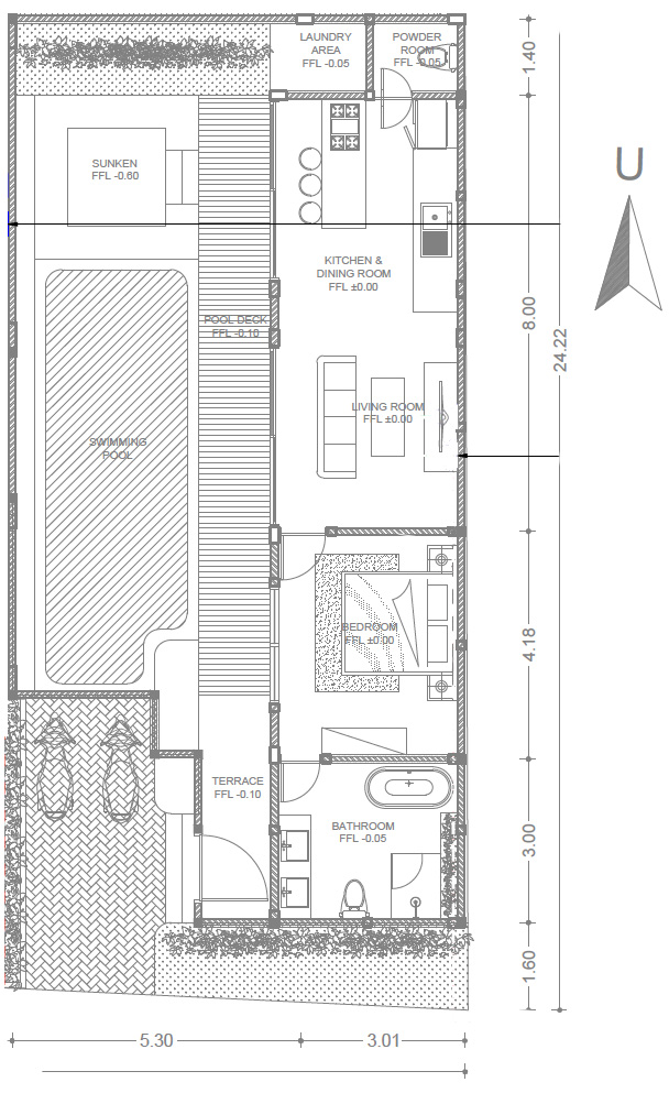
Villa 2 is an exclusive 90 m² retreat designed for those seeking comfort, style, and privacy. It features one spacious bedroom, a modern full bathroom, and an additional guest half-bath, offering both convenience and elegance throughout.
The highlight of the property is its private swimming pool, ideal for relaxing under the sun in complete tranquility. Directly in front of the pool, on a lower level, you’ll find a beautifully designed chill-out area—the perfect spot to unwind, enjoy a drink, read, or entertain guests in a serene and intimate atmosphere.
With a bright, contemporary layout and a seamless blend of indoor and outdoor living, Villa 2 delivers a unique experience that combines Mediterranean charm with modern design. It’s a perfect choice whether you’re looking for a personal getaway or a strong investment opportunity.
Property Summary
This modern villa offers 90 m² of thoughtfully designed living space on a 150m² land plot.
Featuring a bright open-plan living room and a spacious American-style kitchen, the home combines comfort with contemporary design.
With 31bedrooms and 1.5 bathrooms, the villa provides privacy and functionality for families or investors.
The outdoor area includes a private pool surrounded by tropical landscaping, creating an ideal space for relaxing or entertaining.
Perfect as a permanent home, holiday retreat, or investment property in one of Bali’s most desirable locations.
Property Features
- 90 m² built area
- Private swimming pool
- 1 bedroom
- 1.5 bathrooms
- Lower-level chillout zone
- Modern lighting and finishes
- Air conditioning
- Outdoor lounge area
- Quiet and private location
- Excellent for rental investment
90 m²
Furnished
1 Room
Endless Offer To Find Your Ideal Spaces
Villa Ocean
Start From/
90.000€
Bali, Indonesia
Experience pure tropical living in this charming 80 m² beachfront villa located on one of Lombok’s most serene shores.
- Absolute Beachfront Location
- Modern 80 m² Layout
- Two Cozy Bedrooms
- Private Outdoor Terrace
- Excellent Investment Potential
80 m²
Furnished
2 Rooms
Villa Seraya I
240.000€
Bali, Kerobokan, Indonesia
A modern 192 m² villa featuring 3 bedrooms, 2.5 bathrooms, and a private pool, offering a bright open layout and premium finishes.
- Modern open-plan living area
- Private pool with tropical garden
- High-quality materials and finishes
- Spacious master suite
- Ideal for living or investment
192 m²
Furnished
3 Rooms
We Create Villas That Fit You
From layout to materials, tell us what you love and we’ll design a villa that reflects your taste and personality.







